20201110_083610 (Copy).jpg

Umbau Borlachschule zum FTZ Artern

Die ehemalige Bohrlachschule in Artern wurde grundlegend umgebaut und saniert. So finden nun im dem Gebäude das Feuerwehrtechnische Zentrum, die VHS und die Musikschule adäquate Räumlichkeiten vor.

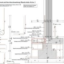
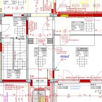
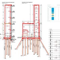
Leistungen: Tragwerksplanung, LP 1-6 - Neubau eines Fahrstuhles und einer Fahrzeughalle, Umbau des Kellerbereiches für eine Schlauchpflege, Abfangungen, Unterfangungen, Mikrobohrpfähle, Fundamentierungen

Ausführungszeitraum: 2020-2021
Auftraggeber: Landratsamt Kyffhäuserkreis
Gesamtinvestition: ca. 5,5 Mio EUR