
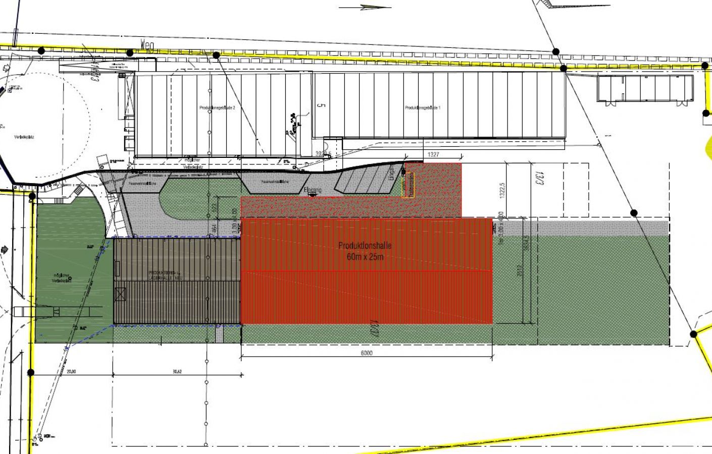
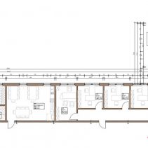
Entwurf einer Produktionshalle
Entwurf und Kostenberechnung einer neuen Produktionshalle im Landkreis Nordhausen.
Ausführungszeitraum: 2016
Auftraggeber: Privat
Gesamtinvestition: -/-
Auftraggeber: Privat
Gesamtinvestition: -/-



zu Projekten | Startseite

