
Neubau eines EFH (6) in Nordhausen
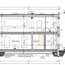
Neubau eines Einfamilienhauses mit Flachdach und angegliederter Garage in der Nordhäuser Altstadt. Unsere Leistungen: Bauantrag, Ausführungsplanung, Tragwerksplanung
Ausführungszeitraum: 2017
Auftraggeber: Privat
Gesamtinvestition: 275.000 EUR
Auftraggeber: Privat
Gesamtinvestition: 275.000 EUR








zu Projekten | Startseite

